Toe aan een volgende stap in jouw woonavontuur? Kom dan langs tijdens de Open Huizen Dag op zaterdag 28 maart!
Tussen 11.00 en 15.00 uur kun je deze woning vrijblijvend bezichtigen.
Loop rustig rond, proef de sfeer en ontdek of dit jouw nieuwe thuis kan zijn.
Je bent van harte welkom – aanmelden is niet nodig!
Op een rustige locatie in Clinge staat deze royale vrijstaande woning met maar liefst 6 slaapkamers, een grote tuin en vrij uitzicht over het achtergelegen land.
Deze woning biedt volop ruimte, zowel binnen als buiten, en is daarmee ideaal voor een groot gezin of iedereen die graag ruimte heeft.
Begane grond
Bij binnenkomst valt direct de royale hal op, met een vide die zorgt voor een ruimtelijk en open gevoel. Vanuit de hal zijn zowel de lichte woonkamer als de keuken bereikbaar. De woonkamer is heerlijk licht dankzij de grote raampartijen en is voorzien van een sfeervolle parketvloer. De ruime doorgang naar de keuken maakt dat beide ruimtes prettig met elkaar in verbinding staan.
De keuken is eenvoudig maar groot van opzet en uitgerust met een 5-pits gasfornuis, koelkast en oven. Vanuit hier bereik je de kelder: droog, ruim en ideaal voor voorraadopslag, met toegang tot de kruipruimte onder de gehele woning.
Aangrenzend aan de keuken bevindt zich de praktische bijkeuken met toilet, cv-ketel en aansluiting voor de wasmachine.
Verder zijn op de begane grond twee slaapkamers en een badkamer aanwezig. De badkamer is uitgerust met een douche, toilet en wastafel met meubel.
1e verdieping
Via de vaste trap bereik je de eerste verdieping. De overloop geeft toegang tot vier slaapkamers, waarvan drie voorzien zijn van handige inbouwkasten. Ook is er op deze verdieping een ruimte met douche en toilet aanwezig.
Tuin
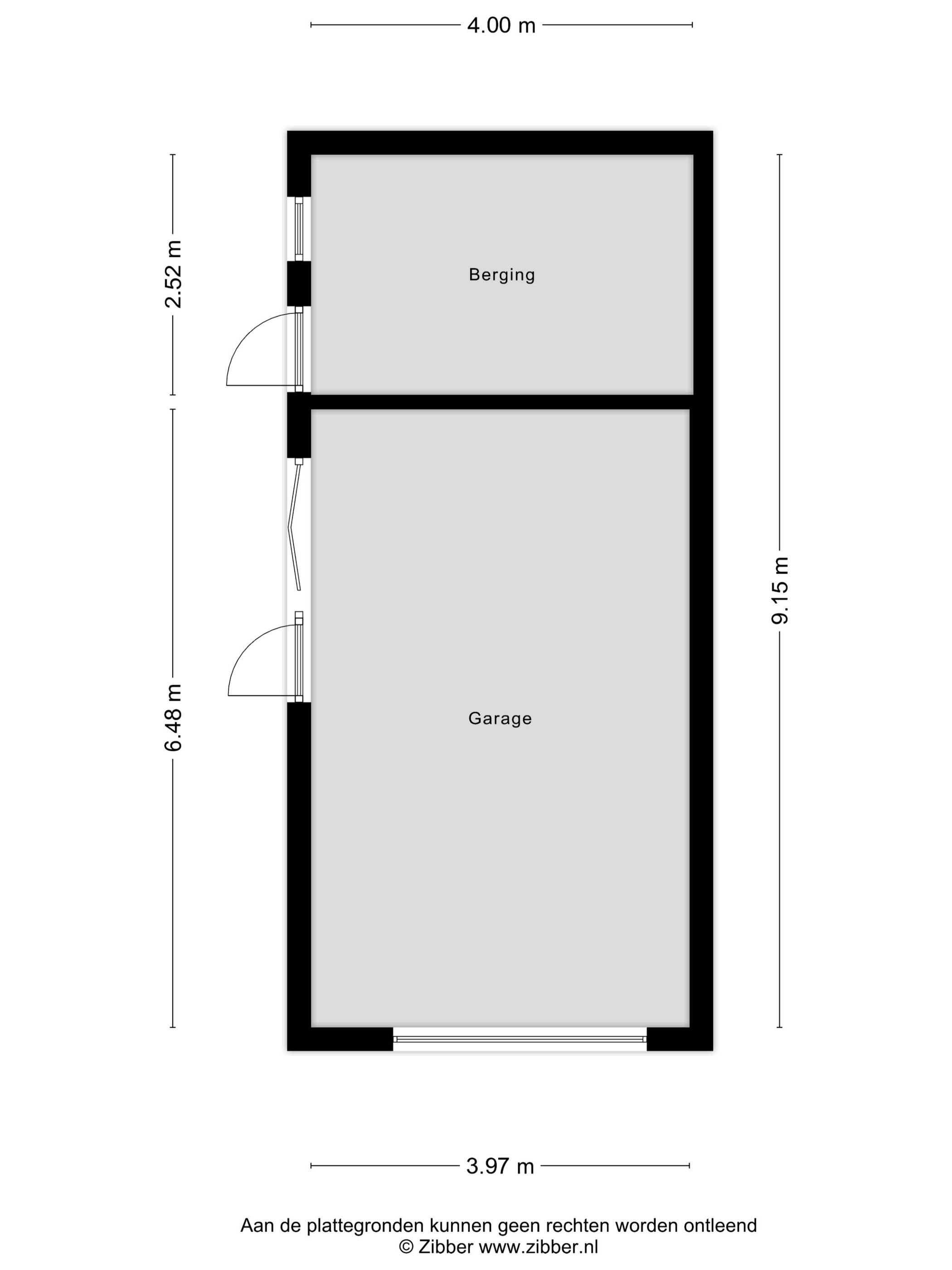
De tuin rondom de woning is heerlijk ruim en biedt aan de achterzijde vrij uitzicht over de landerijen. Hier geniet je in alle rust van de buitenlucht en het uitzicht. Daarnaast beschikt het perceel over een vrijstaande stenen garage en berging. De garage is voorzien van een elektrisch rolluik en biedt voldoende ruimte voor het stallen van een auto.
| C |
Wilt u een notitie aanmaken bij dit object of wilt u deze volgen, maak dan gratis een (zoek) profiel aan om van deze en meer extra's te profiteren!
Reageer direct Delen op Facebook Download brochureKadaster
Bezichtigen








