In de populaire en kindvriendelijke Carmenwijk in Sint Jansteen staat deze instapklare tussenwoning uit 2018. De woning is gebouwd met oog voor duurzaamheid en comfort en beschikt over vier slaapkamers, een open keuken en een onderhoudsvriendelijke tuin met berging en overkapping.
Begane grond
Bij binnenkomst in de hal tref je het toilet en de toegang tot de keuken. De ruime hoekkeuken is modern uitgevoerd en van alle gemakken voorzien: een 4-pits inductiekookplaat, vaatwasser, magnetron, oven en een koelkast met vriezer. Dankzij de open verbinding met de woonkamer is dit een heerlijke leefruimte.
De woonkamer is gezellig en licht, voorzien van een elektrische haard die voor extra sfeer zorgt. Onder de trap is een praktische voorraadkast aanwezig. Vanuit de woonkamer stap je zo de tuin in.
1e verdieping
Op de eerste verdieping bevinden zich drie ruime slaapkamers en de badkamer. De badkamer is compleet uitgerust met een douche, wastafel met meubel en een toilet.
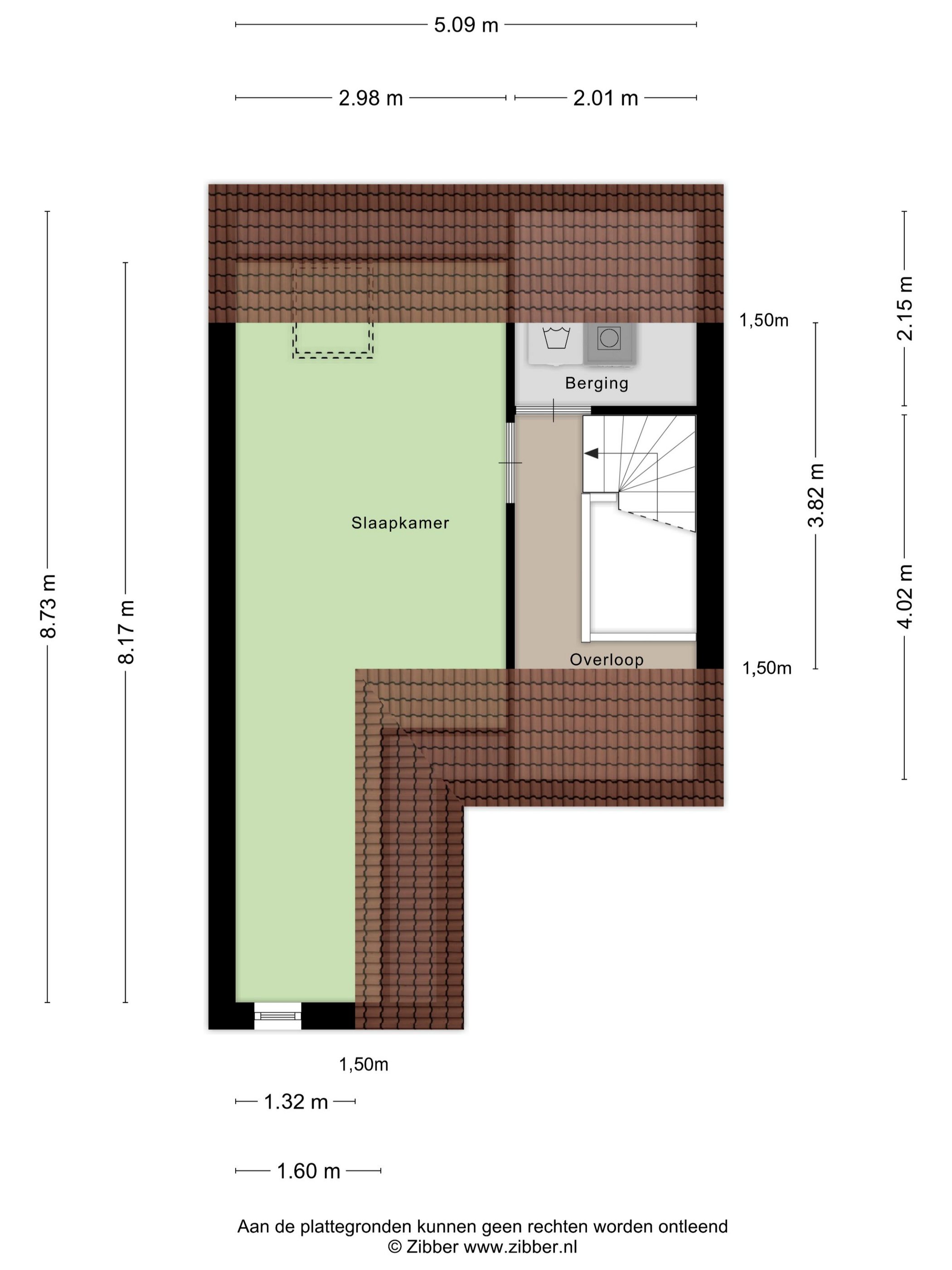
2e verdieping
De tweede verdieping is bereikbaar via een vaste trap. Hier vind je de vierde slaapkamer en tevens de ruimte voor de cv-ketel en wasmachineaansluiting.
Tuin
De achtertuin is onderhoudsvriendelijk aangelegd en beschikt over een vrijstaande houten berging met overkapping. Ideaal om spullen op te bergen en om ook bij regenachtig weer buiten te kunnen genieten.
Bijzonderheden
Pluspunten van deze woning
* Moderne woning (bouwjaar 2018)
* Energiezuinig en duurzaam gebouwd
* Vier slaapkamers
* Gezellige woonkamer met elektrische haard
* Moderne hoekkeuken
* Onderhoudsvriendelijke tuin met berging en overkapping
* Gelegen in de geliefde Carmenwijk in Sint Jansteen
Deze jonge, comfortabele woning is ideaal voor gezinnen die op zoek zijn naar een instapklare woning in een fijne woonomgeving.
| A |
Wilt u een notitie aanmaken bij dit object of wilt u deze volgen, maak dan gratis een (zoek) profiel aan om van deze en meer extra's te profiteren!
Reageer direct Delen op Facebook Download brochureWellicht ook interessant
Kadaster
Bezichtigen








