Op een unieke locatie in Waterzande bevindt zich dit prachtige nieuwbouwappartement op de tweede verdieping, met een adembenemend uitzicht over de Westerschelde. Hier woon je elke dag met het water, de lucht en de voorbijvarende schepen als levend schilderij.
Omschrijving
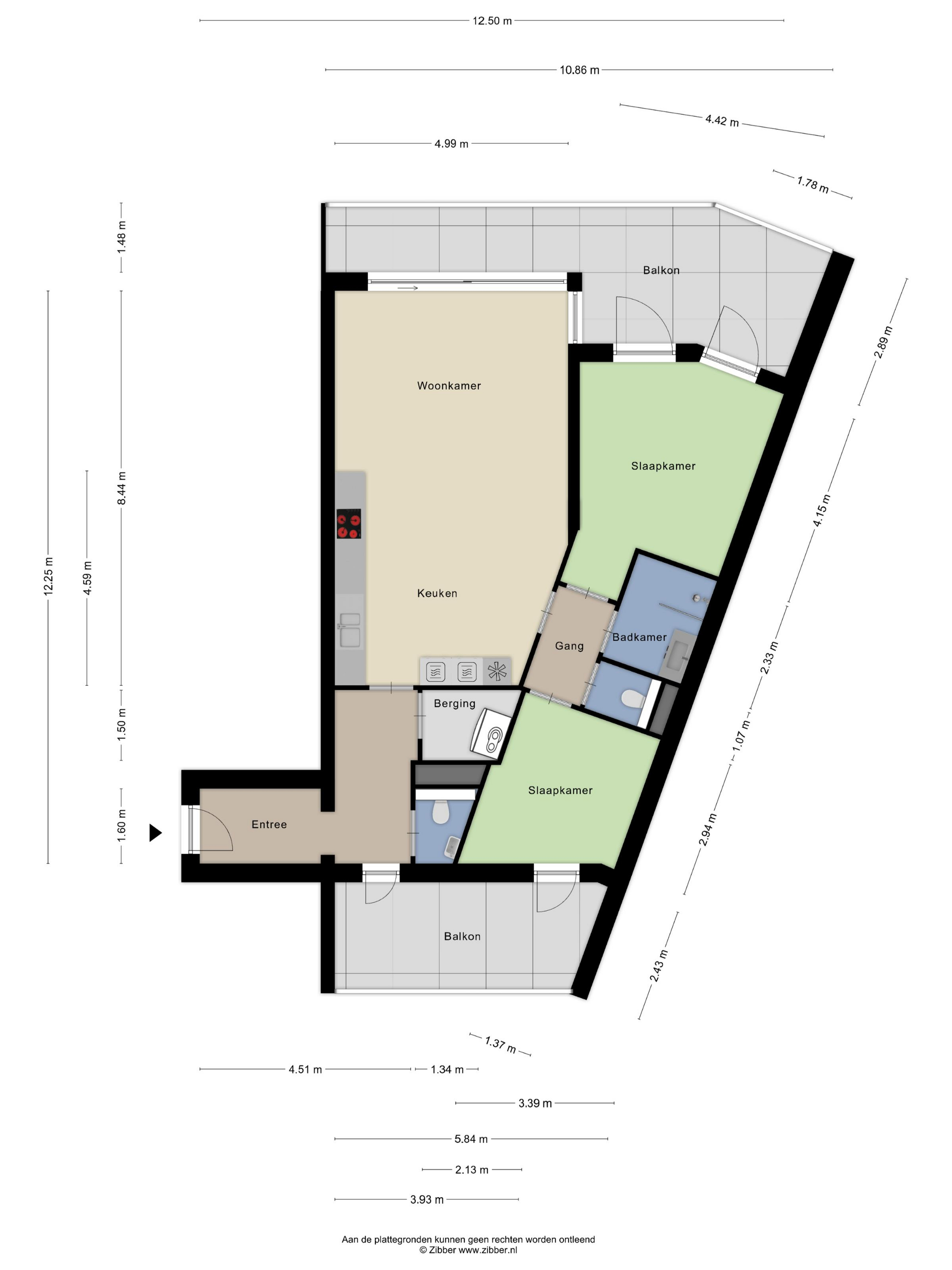
Bij binnenkomst word je verwelkomd in een brede en lichte gang. Vanuit hier heb je toegang tot het eerste balkon, het separate toilet met fonteintje en een praktische berging. Aan het einde van de gang ontvouwt zich de ruime open keuken en woonkamer, waar direct het indrukwekkende uitzicht in het oog springt. De grote raampartijen van vloer tot plafond zorgen voor een overvloed aan licht en een optimaal contact met buiten.
De royale schuifpui geeft toegang tot een groot balkon, de plek om te genieten van de zon, de frisse zeelucht en het rustgevende schouwspel van schepen op de Westerschelde. De moderne open keuken is compleet uitgevoerd met inbouwapparatuur, waaronder een inductiekookplaat, vaatwasser, koelkast en combi oven/magnetron.
Via een tweede gang bereik je het slaapgedeelte met twee comfortabele slaapkamers, een apart toilet en de badkamer. De badkamer is stijlvol ingericht en voorzien van een inloopdouche en wastafel. Vanuit beide slaapkamers stap je zo een balkon op – ideaal voor een rustig koffiemoment in de ochtendzon.
Het appartement dient verder naar eigen smaak te worden afgewerkt met voeren en wandbekleding. Zo heb je de vrijheid om het interieur volledig aan te passen aan jouw woonwensen.
Bijzonderheden
In de parkeerkelder beschik je over een eigen parkeerplaats en een privéberging, wat het wooncomfort compleet maakt.
Kortom: een luxe en licht appartement op een uitzonderlijke locatie, waar rust, ruimte en uitzicht samenkomen. Een unieke kans om te wonen aan het water in Zeeuws-Vlaanderen.
| A |
Wilt u een notitie aanmaken bij dit object of wilt u deze volgen, maak dan gratis een (zoek) profiel aan om van deze en meer extra's te profiteren!
Reageer direct Delen op Facebook Download brochureKadaster
Bezichtigen








