In een rustige, groene en geliefde woonomgeving in de wijk Oude Vaart in Terneuzen, aan de sfeervolle Klaprooslaan, staat deze uitstekend onderhouden twee-onder-een-kapwoning met aangebouwde stenen garage, meerdere slaapkamers en een verzorgde voor- en achtertuin.
De ligging is bijzonder aantrekkelijk: op korte afstand van winkels, scholen en andere dagelijkse voorzieningen, waardoor comfort en bereikbaarheid hier hand in hand gaan. Deze woning biedt volop ruimte en wooncomfort voor een gezin.
Met onder andere zonnepanelen, een sfeervolle open haard en een extra multifunctionele ruimte is dit een huis waar u zich direct thuis zult voelen.
Begane grond
Via de entree komt u in de hal met toiletruimte en trapopgang naar de eerste verdieping. De ruime woonkamer is heerlijk licht dankzij de grote schuifpui naar de tuin, waardoor binnen en buiten op natuurlijke wijze in elkaar overlopen.
De open haard vormt een sfeervol middelpunt en zorgt voor extra warmte en gezelligheid tijdens de koudere dagen.De moderne keuken is praktisch ingericht en voorzien van diverse inbouwapparatuur.
Dankzij de royale opzet is er voldoende ruimte voor het plaatsen van een eettafel, waardoor u hier kunt spreken van een volwaardige eetkeuken — een fijne plek om samen te komen.
Aansluitend bevindt zich een extra kamer die zich uitstekend leent als thuiskantoor, praktijkruimte aan huis, speelkamer of hobbyruimte.
1e verdieping
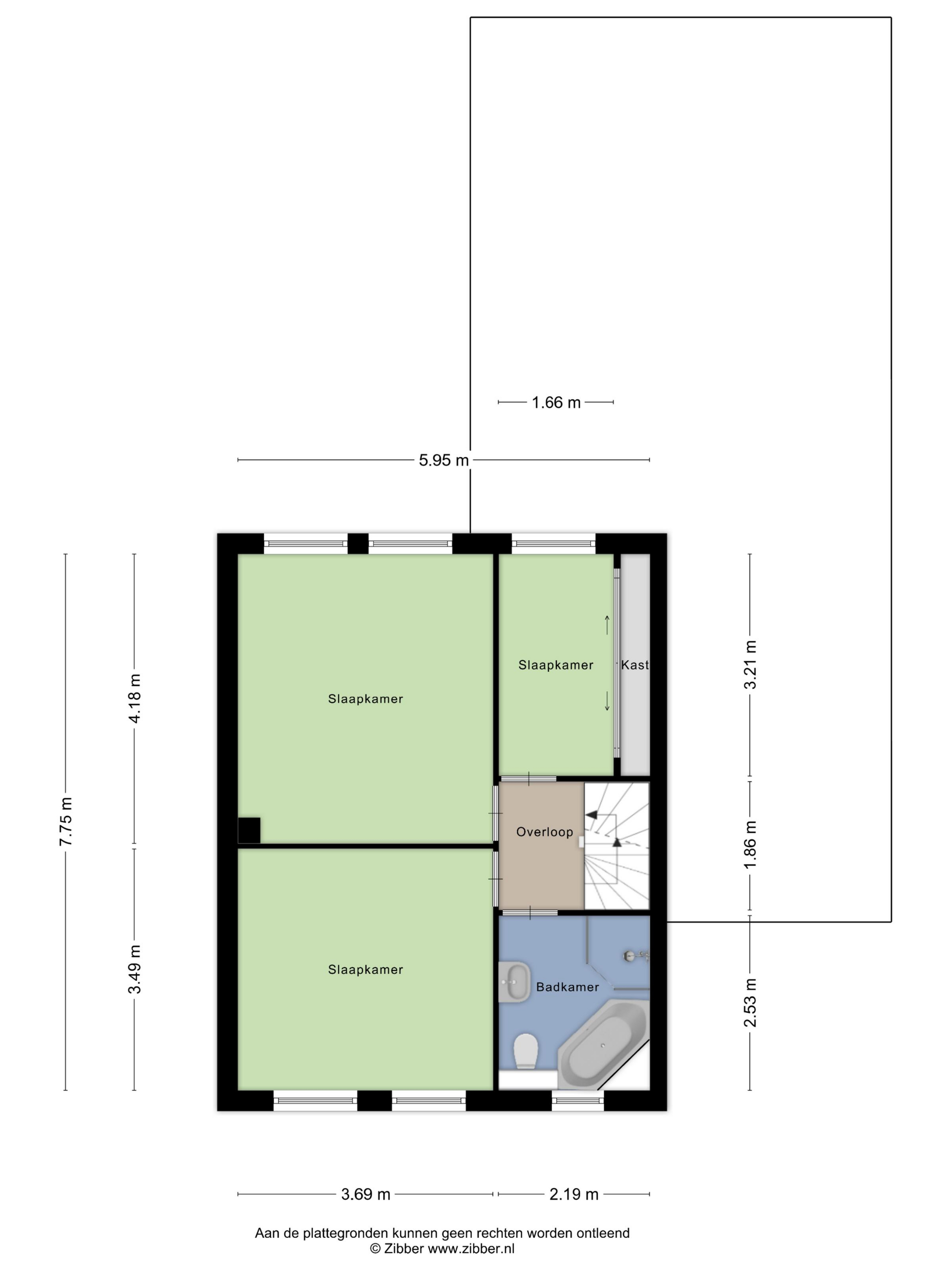
Op de eerste verdieping bevinden zich drie ruime slaapkamers, allen verzorgd afgewerkt en met een prettige lichtinval.
De badkamer is compleet uitgevoerd en voorzien van een douche, wastafel en tweede toilet — comfortabel en functioneel voor dagelijks gebruik.
2e verdieping
Via een vaste trap bereikt u de tweede verdieping, waar zich een volwaardige vierde slaapkamer bevindt.
Daarnaast is er extra ruimte die gebruikt kan worden als berging of werkplek.
Deze verdieping maakt de woning bijzonder flexibel en geschikt voor diverse woonwensen.
Tuin
De woning beschikt over een verzorgde voor- en achtertuin.
De achtertuin is gunstig gelegen op de zon, waardoor u gedurende de dag kunt genieten van zowel zon als schaduw.
Dit maakt het een ideale plek voor een terras of gezellige buitenmomenten met familie en vrienden.
Daarnaast beschikt de tuin over een vrije achterom.
De aangebouwde stenen garage is voorzien van elektriciteit en biedt ruimte voor één auto en extra opslag.
Bovendien is er parkeergelegenheid op eigen terrein.
Bijzonderheden
• Gelegen in de geliefde wijk Oude Vaart
• Op korte afstand van voorzieningen en scholen
• Goed onderhouden en instapklare woning
• Voorzien van zonnepanelen
• Sfeervolle open haard
• Vier slaapkamers en extra multifunctionele ruimte
• Ruime eetkeuken
• Heerlijke achtertuin met gunstige zonligging en vrije achterom
• Aangebouwde stenen garage met elektra
• Parkeren op eigen terrein
• Voorzien van rolluiken en glasvezelaansluiting
Wilt u een notitie aanmaken bij dit object of wilt u deze volgen, maak dan gratis een (zoek) profiel aan om van deze en meer extra's te profiteren!
Reageer direct Delen op Facebook Download brochureLegenda
Klik op de icoontjes op de kaart om meer informatie te zien.
![]() | Klaprooslaan 95 |
![]() | Alternatief |
![]() | School of universiteit |
![]() | Supermarkt of anderzijds levensmiddelenwinkel |
![]() | Café en/of horeca |
![]() | Gym of sportschool |
![]() | Tandards of anderzijds gezondheidgerelateerd |
![]() | Dokter of ziekenhuis |
U kunt rechts bovenin de kaart op 'Kaart' of 'Sateliet' klikken om zo een andere weergave te krijgen.
Met de + en - aan de linkerkant kunt u in- en uitzoomen.
Indien u uw linkermuisknop indrukt en ingedrukt houdt (op de kaart), dan kunt u deze ook verslepen.
In een rustige, groene en geliefde woonomgeving in de wijk Oude Vaart in Terneuzen, aan de sfeervolle Klaprooslaan, staat deze uitstekend onderhouden twee-onder-een-kapwoning met aangebouwde stenen garage, meerdere slaapkamers en een verzorgde voor- en achtertuin.
De ligging is bijzonder aantrekkelijk: op korte afstand van winkels, scholen en andere dagelijkse voorzieningen, waardoor comfort en bereikbaarheid hier hand in hand gaan. Deze woning biedt volop ruimte en wooncomfort voor een gezin.
Met onder andere zonnepanelen, een sfeervolle open haard en een extra multifunctionele ruimte is dit een huis waar u zich direct thuis zult voelen.
Kadaster
Bezichtigen
















