In de rustige en kindvriendelijke Dullaertwijk van Hulst staat deze ruime twee-onder-een-kapwoning met vijf slaapkamers, een open keuken, moderne badkamer en een aangebouwde garage. De woning is praktisch ingedeeld en geschikt voor gezinnen die op zoek zijn naar ruimte en comfort.
Begane grond
Via de hal, met toegang tot het toilet met fonteintje, kom je in de woonkamer. De woonkamer is prettig licht en staat in open verbinding met de keuken. De keuken is modern uitgevoerd en voorzien van een kookeiland met 5-pits gaskookplaat, vaatwasser, koelkast, vriezer, oven en magnetron.
1e verdieping
Op de eerste verdieping bevinden zich drie slaapkamers en de badkamer. De badkamer is ingericht met een inloopdouche, toilet en een dubbele wastafel met meubel. Alle slaapkamers zijn voorzien van horren.
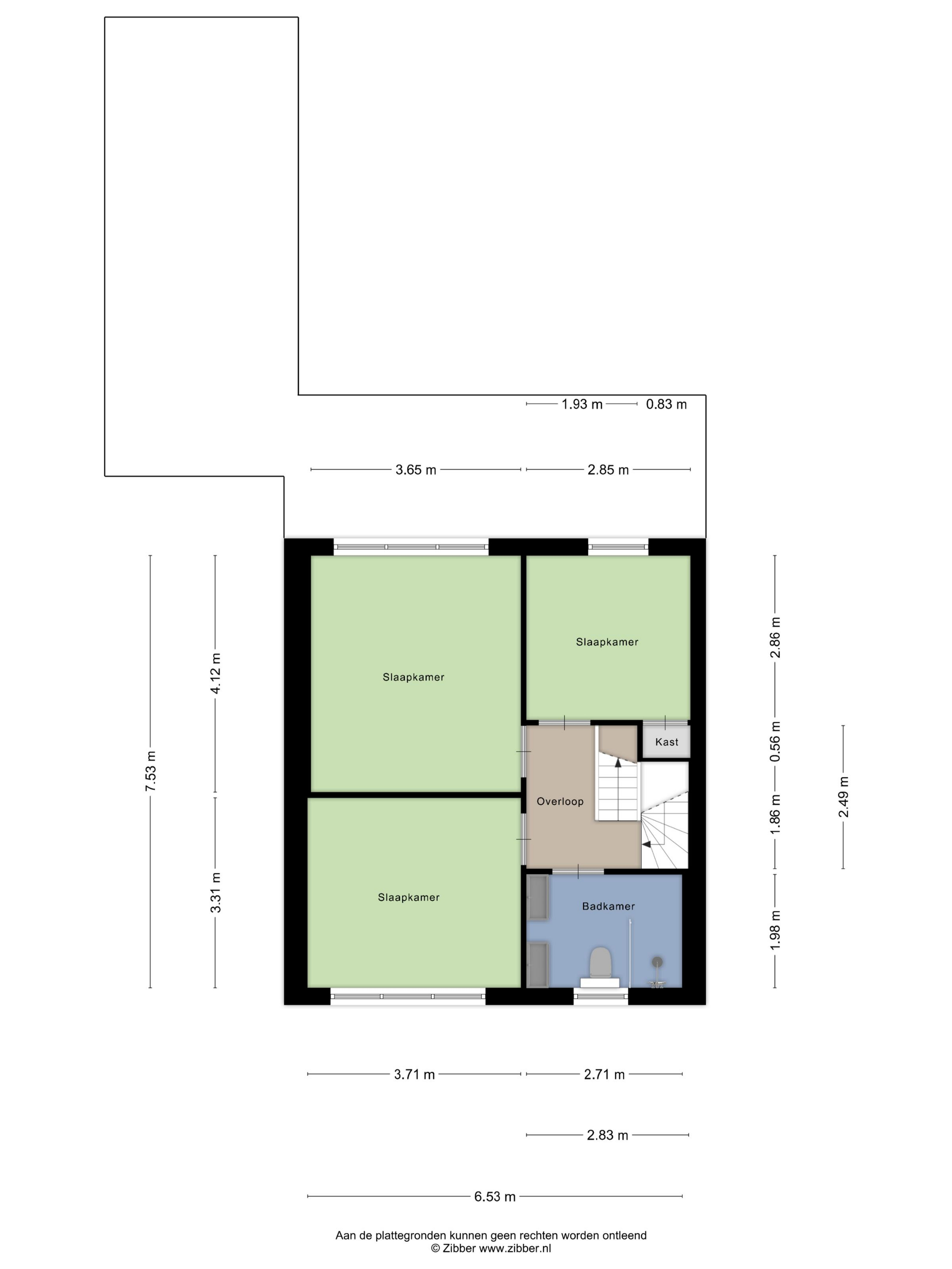
2e verdieping
Via een vaste trap is de tweede verdieping bereikbaar. Hier zijn nog twee slaapkamers en op de overloop bevindt zich de cv-ketel (2011).
Tuin
Vanuit de keuken is er toegang tot de tuin met een houten overkapping, waardoor je ook bij minder weer buiten kunt zitten. Achterin de tuin staat een houten berging met elektra en een vliering. Via de achteruitgang kom je direct bij een openbaar speeltuintje, wat de woning geschikt maakt voor gezinnen met (jonge) kinderen.
De aangebouwde garage is bereikbaar via de overkapping en is voorzien van een wasmachine- en drogeraansluiting. De garage biedt ruimte voor het parkeren van een auto en het stallen van fietsen.
| B |
Wilt u een notitie aanmaken bij dit object of wilt u deze volgen, maak dan gratis een (zoek) profiel aan om van deze en meer extra's te profiteren!
Reageer direct Delen op Facebook Download brochureKadaster
Bezichtigen








