In het gezellige centrum van Hulst, op korte afstand van de stadswallen, bevindt zich dit ruime en goed onderhouden appartement aan de Baudeloo 34 A.
Met een woonoppervlakte van circa 140 m², inclusief garage, drie slaapkamers en een lichte woonkamer biedt deze woning een comfortabele en praktische leefomgeving voor een brede doelgroep.
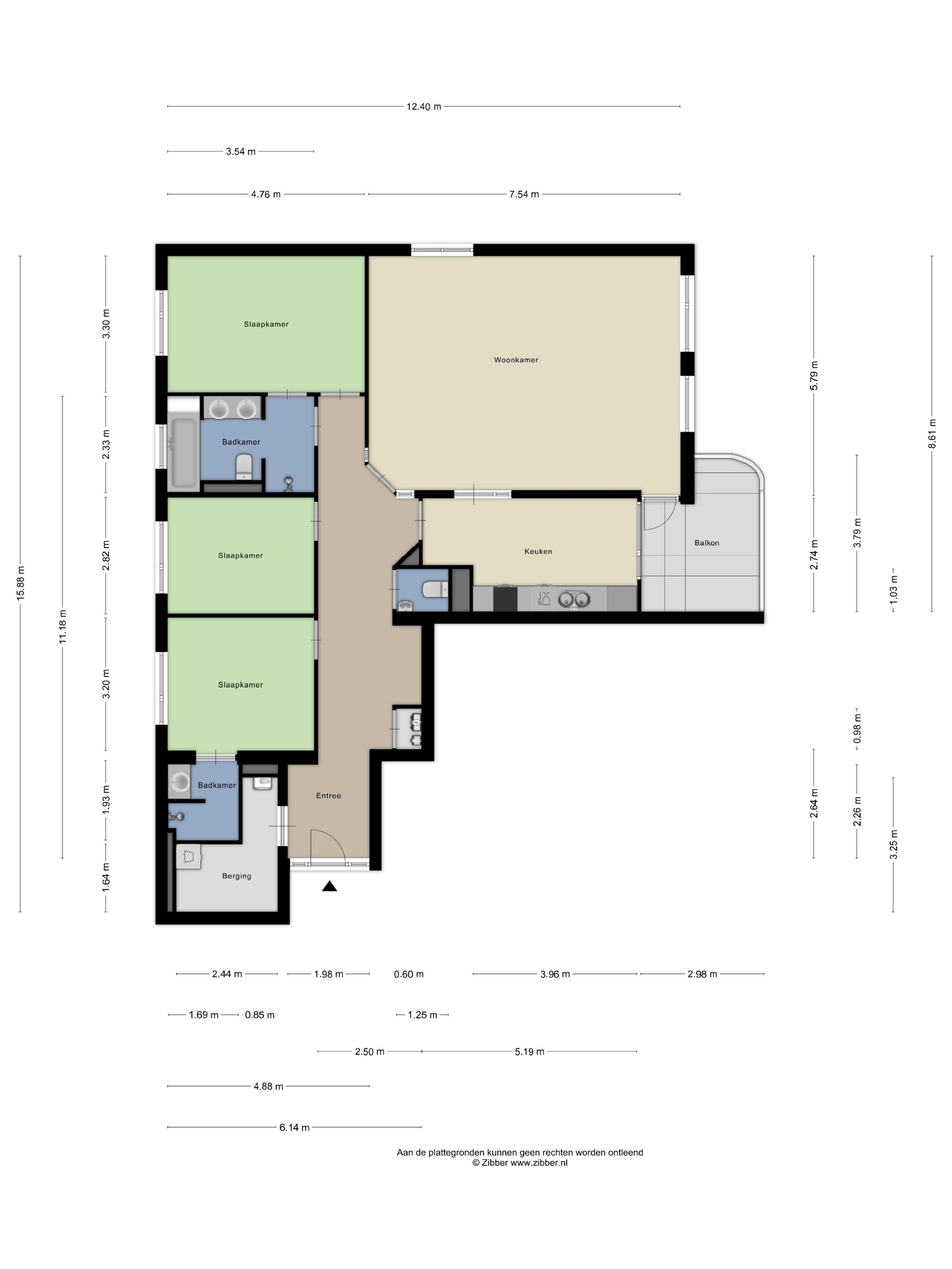
Omschrijving
Via de centrale entree met intercom, lift en trappenhuis bereik je het appartement op de eerste verdieping.
Op de begane grond bevindt zich tevens de inpandige berging.
1e verdieping
Bij binnenkomst in de ruime hal is er toegang tot ieder vertrek.
De royale woonkamer van circa 44 m² biedt volop mogelijkheden voor het creëren van een comfortabele zit- en eethoek. De grote raampartijen zorgen voor een prettige lichtinval.
De keuken sluit goed aan op de woonkamer en is praktisch ingericht met voldoende werk- en bergruimte.
Het appartement beschikt over drie slaapkamers, die allen veel ruimte bieden en naar wens kunnen worden ingericht, bijvoorbeeld als slaap-, werk- of hobbyruimte.
In het appartement bevinden zich twee badkamers. De badkamer gelegen aan de grootste slaapkamer is via de hal en slaapkamer toegankelijk en voorzien van ligbad, inloopdouche, dubbele wastafel en toilet. De tweede badkamer is ensuite gelegen aan de andere slaapkamer. Deze is voorzien van inloopdouche en wastafel.
Daarnaast is er een separate toiletruimte aanwezig, toegankelijk vanuit de hal.
Balkon
Het appartement beschikt over een balkon van circa 10 m², waar je heerlijk kan genieten van de buitenlucht.
Het balkon is Zuid-oost georiënteerd.
Bijzonderheden
In het gebouw bevindt zich een ruime inpandige berging (circa 22 m²), voorzien van elektra.
Ideaal voor extra opslag of het stallen van fietsen.
Daarnaast beschik je over een eigen garage die zich bevindt naast het gebouw en is voorzien van een elektrische roldeur.
Bijzonderheden:
• Ruim appartement
• Woonoppervlakte circa 140 m²
• Royale woonkamer van ca. 44 m²
• Drie slaapkamers
• Gelegen op de eerste verdieping
• Balkon van ca. 10 m²
• Inpandige berging (ca. 22 m²) met elektra
• Inclusief garage
• Lift aanwezig
• Volledig geïsoleerd (dak-, muur- en vloerisolatie, dubbel glas)
• Verwarming via HR107-combiketel
• Energielabel A
Een ruim en comfortabel appartement op een centrale locatie, dicht bij de stadswallen en alle voorzieningen binnen handbereik.
| A |
Wilt u een notitie aanmaken bij dit object of wilt u deze volgen, maak dan gratis een (zoek) profiel aan om van deze en meer extra's te profiteren!
Reageer direct Delen op Facebook Download brochureWellicht ook interessant
Kadaster
Geen kadasterafbeelding beschikbaar
Bezichtigen








