Starters opgelet!
In de gewilde Oranjebuurt ligt deze charmante aangebouwde tussenwoning met 3 slaapkamers, stenen berging en heerlijke zonnige tuin op het zuidwesten met vrije achterom.
De woning is gelegen op een rustige woonlocatie vlakbij basisscholen, speeltuin en het centrum van Terneuzen met alle voorzieningen.
Deze traditioneel gebouwde woning is een ideale starterswoning en rustig gelegen in de gewilde Oranjebuurt.
De woning is rondom voorzien van houten en kunststof kozijnen, met op de begane grond dubbele beglazing en op de verdieping enkele beglazing.
Vrijwel overal zijn er rolluiken en horren geplaatst. In de aanbouw bevindt zich een ruime bijkeuken met toilet en via de tuin is een praktische berging bereikbaar.
Het platte dak van de uitbouw is in 2006 vernieuwd.
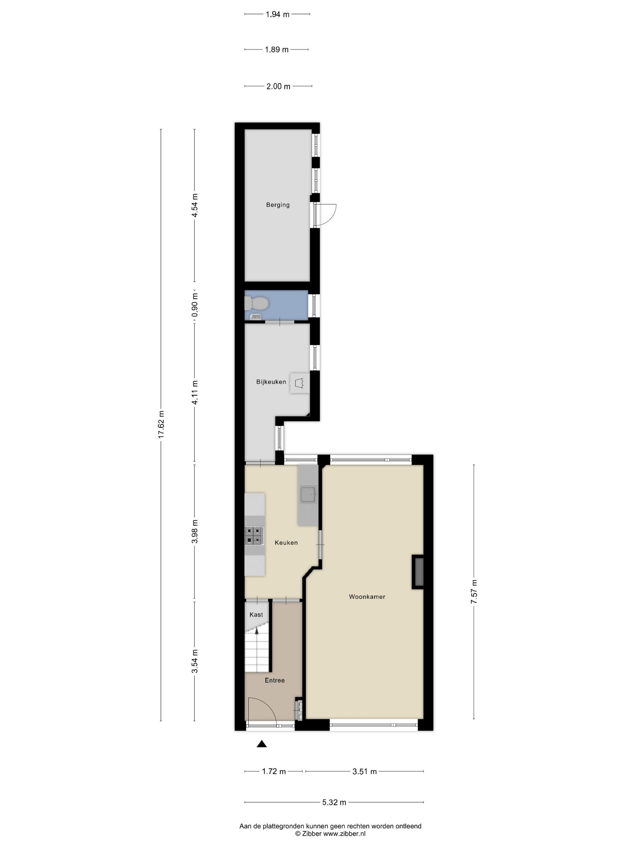
Begane grond
Binnenkomst in de hal met vernieuwde meterkast en trap naar de eerste verdieping.
Vanuit de hal kom je in de dichte keuken, die toegang geeft tot de woonkamer, de trappenkast en de bijkeuken met eenvoudig toilet en achterdeur naar de tuin.
De sfeervolle doorzonwoonkamer met houten plankenvloer biedt door de grote raampartijen een aangename hoeveelheid licht.
De keuken (2002) heeft aan twee zijden een rechte opstelling en is voorzien van inbouwapparatuur zoals een 5-pits gaskookplaat, afzuigkap, koelkast en vaatwasmachine.
In de uitbouw bevindt zich een ruime, praktische bijkeuken met witgoedaansluitingen, toegang tot de achtertuin en het toilet.
1e verdieping
Op de 1e verdieping bevinden zich de overloop met 3 slaapkamers en een gemoderniseerde badkamer.
Deze verdieping is eveneens met een sfeervolle plankenvloer afgewerkt.
De badkamer (2003) is uitgevoerd met douche, wastafel en tweede toilet.
2e verdieping
Hier bevindt zich een praktische bergzolder die bereikbaar is via de vlizotrap. Op de bergzolder bevindt zich de recente Nefit HR-combiketel (2025).
Tuin
De onderhoudsvriendelijke tuin, gelegen op het zuidwesten, biedt een beschutte plek om heerlijk van het buitenleven te genieten.
Een ideale tuin om ’s avonds tot rust te komen of te genieten van een gezellige BBQ met vrienden en/of familie! De tuin is bereikbaar vanaf de achtergelegen brandgang.
Bijzonderheden
Heb jij twee gouden handjes en zoek je een betaalbare woning op een rustige woonlocatie met alle voorzieningen en het centrum van Terneuzen op wandelafstand?
Laat je dan overtuigen en maak snel een afspraak om deze tussenwoning te bezichtigen.
| F |
Wilt u een notitie aanmaken bij dit object of wilt u deze volgen, maak dan gratis een (zoek) profiel aan om van deze en meer extra's te profiteren!
Reageer direct Delen op Facebook Download brochureKadaster
Bezichtigen







