Ben je op zoek naar een gezellige woning in een rustige woonwijk met een fijne tuin en volop mogelijkheden om deze naar eigen smaak te moderniseren? Deze twee-onder-een-kapwoning aan de Burgemeester IJsebaertstraat in Sint Jansteen biedt een mooie kans voor starters of (jonge) gezinnen.
Met een eigen oprit, vrijstaande garage en een ruime achtertuin combineert deze woning comfort met potentie.
De woning is gelegen in een prettige woonomgeving met alle dagelijkse voorzieningen op korte afstand.
Het centrum van Hulst, met diverse winkels, supermarkten en horecagelegenheden, is eenvoudig te bereiken.
Ook steden als Antwerpen en Gent liggen op comfortabele rijafstand.
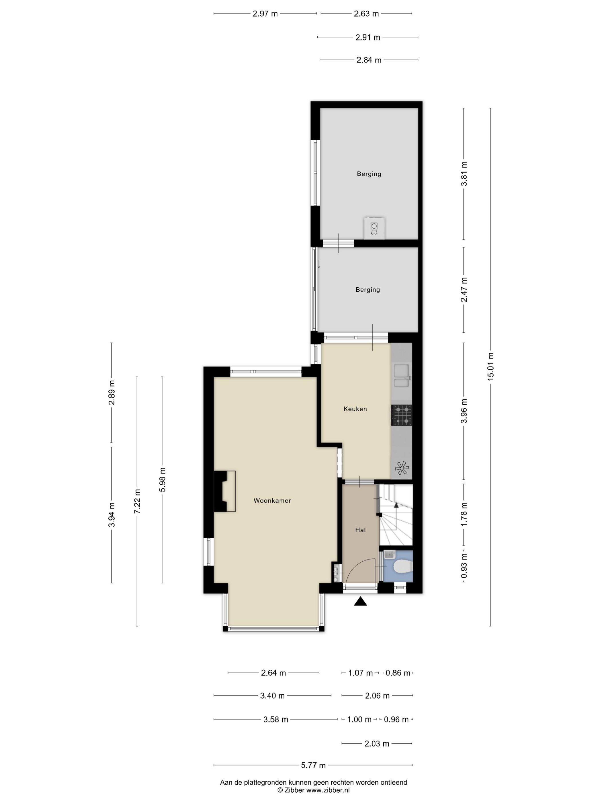
Begane grond
Via de entree kom je in de hal, die toegang biedt tot de leefruimte.
De woonkamer geniet van een prettige lichtinval en biedt voldoende ruimte voor een zit- en eethoek.
En de erker aan de voorzijde maakt het extra sfeervol en karakteristiek.
De keuken is net onderhouden en bied ook de ruimte om te moderniseren.
Vanuit de keuken is de achtertuin bereikbaar.
Daarnaast is er extra inpandige ruimte aanwezig, geschikt als bijkeuken, berging of hobbyruimte.
1e verdieping
Via de overloop bereik je drie slaapkamers. De kamers zijn functioneel in te delen en bieden voldoende ruimte voor een gezin, werkplek of hobbykamer. Daarnaast bevindt zich hier een badkamer voorzien van wastafel en douche.
Tuin
De woning beschikt over een voor- en ruime achtertuin met een totale oppervlakte van circa 191 m².
De achtertuin is gelegen op het noordoosten en biedt volop mogelijkheden om een fijne buitenplek te creëren, bijvoorbeeld met een terras of groen.
Op het perceel bevindt zich een vrijstaande stenen garage, voorzien van elektra en water.
Ideaal voor het stallen van een auto, fietsen of als extra opslagruimte.
Daarnaast is er parkeergelegenheid op eigen terrein voor meerdere auto’s.
Overige verdieping(en) en ruimten
Kortom, een nette woning met een solide basis en volop mogelijkheden tot modernisering, gelegen op een rustige locatie. Een ideale kans om een eigen thuis te creëren dat volledig aansluit bij jouw woonwensen.
| F |
Wilt u een notitie aanmaken bij dit object of wilt u deze volgen, maak dan gratis een (zoek) profiel aan om van deze en meer extra's te profiteren!
Reageer direct Delen op Facebook Download brochureKadaster
Bezichtigen







