Gemengd beleggingsobject met stabiel huurinkomen in Hulst.
Samenvatting
Adres: Poorterslaan 2-6 + Churchillweg 1, 4561 ZL Hulst
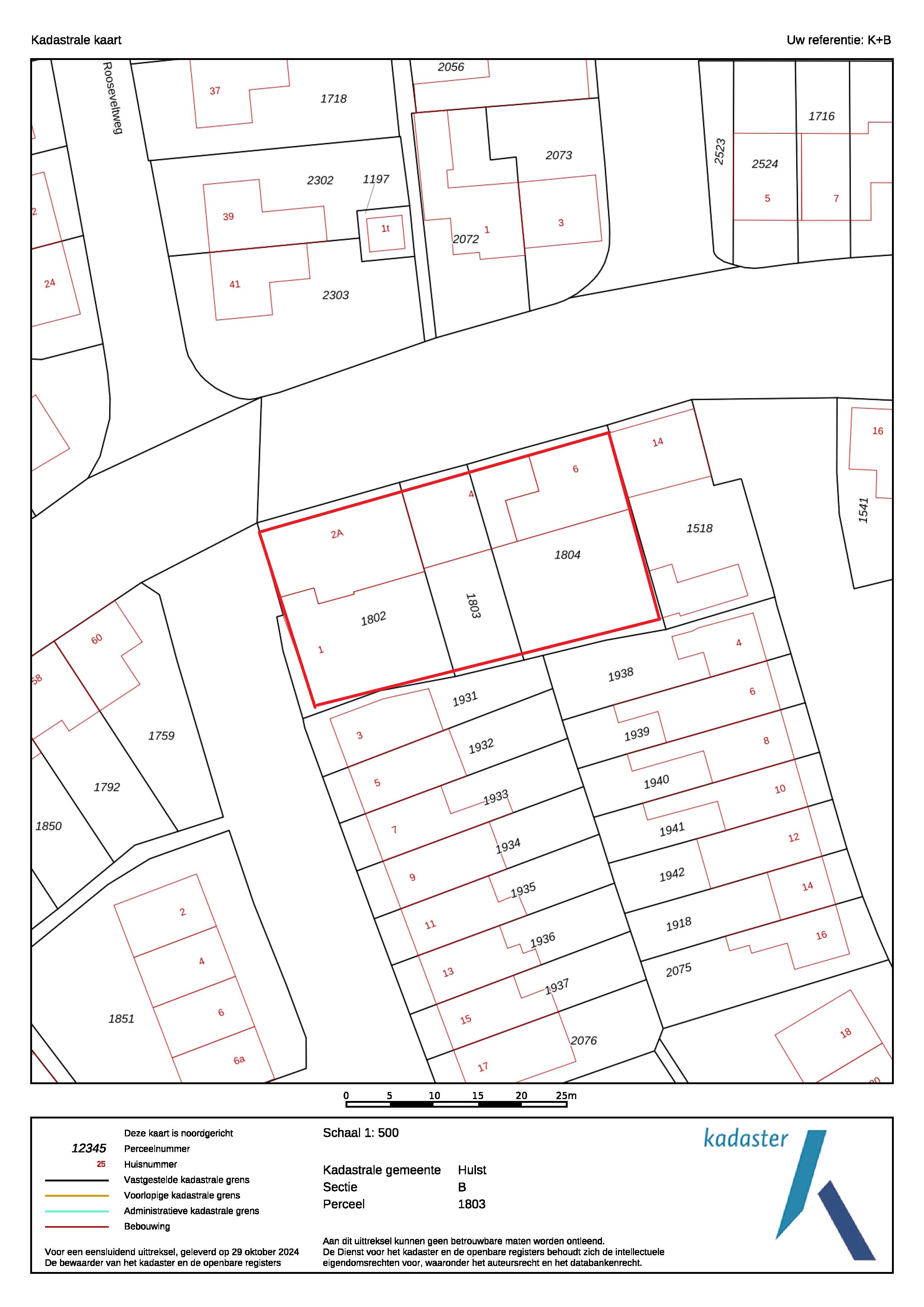
Kadastrale nummers: Sectie B 1802, 1803 en 1804
Aantal eenheden: 3 appartementen + 2 winkelruimtes
Totale huurinkomsten: € 109.000 per jaar
Huurcontracten: Langlopende contracten
Bouwjaar: 1980
Staat van onderhoud: Goed
Stabiel gemengd beleggingsobject op vijf minuten van het historisch centrum van Hulst.
Aan de Poorterslaan in Hulst bevindt zich dit goed onderhouden beleggingsobject, opgebouwd uit twee commerciële winkelruimtes op de begane grond en drie zelfstandige appartementen op de eerste verdieping. Een solide gemengde investering die commercieel en residentieel rendement combineert, volledig verhuurd en direct cashflow-positief.
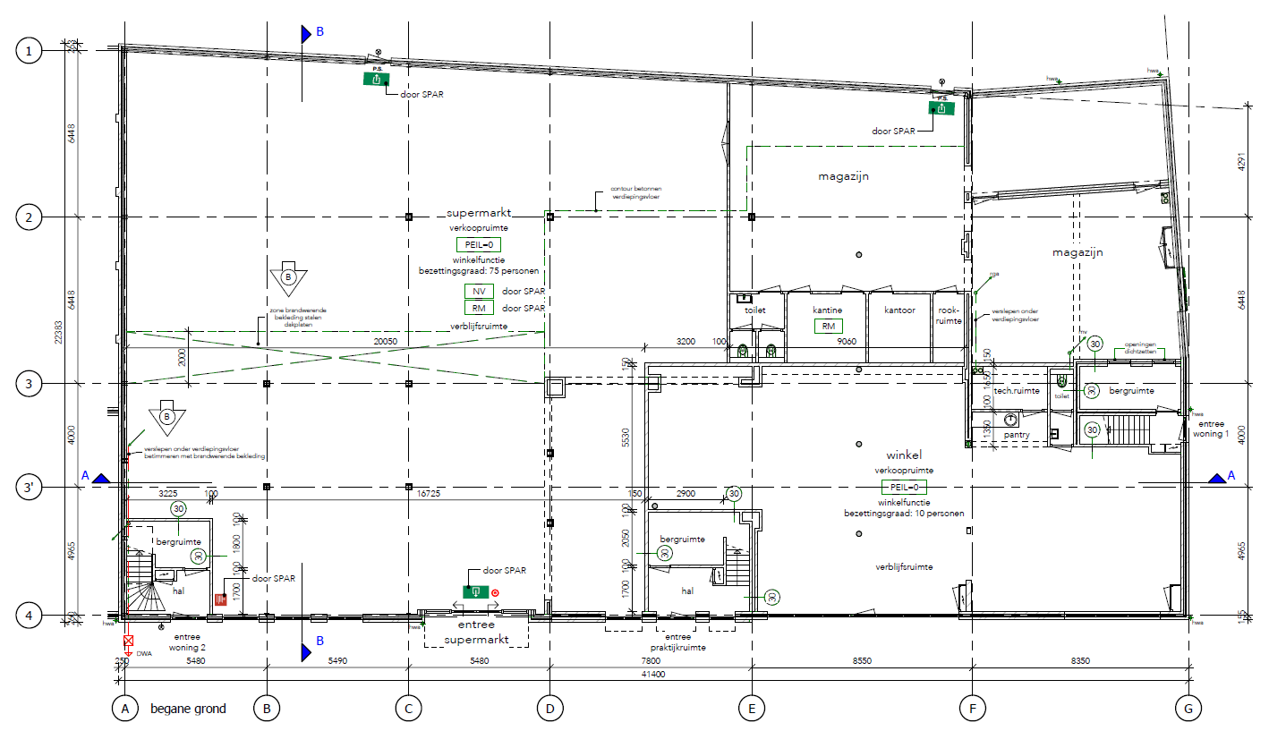
De begane grond biedt in totaal 800 m2 aan winkeloppervlak, verdeeld over een hoofdunit van 630 m2 en een tweede ruimte van 170 m2.
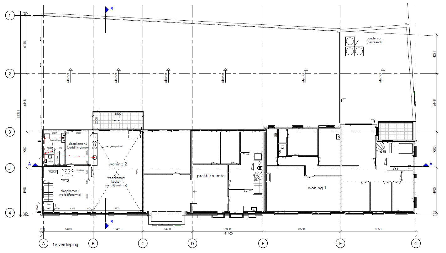
Op de verdieping bevinden zich drie ruime appartementen van respectievelijk 108, 128 en 155 m², allen geschikt voor langdurige residentiële verhuur.
Twee van de appartementen werden in 2023 volledig gerenoveerd, het derde in 2019. Dankzij de langlopende huurcontracten over alle drie de eenheden geniet de investeerder van maximale zekerheid en een voorspelbare huurinkomst van € 109.000 per jaar.
Het pand uit 1980 verkeert in goede bouwkundige staat en is gelegen op slechts vijf minuten loopafstand van de historische binnenstad van Hulst, een van de best bewaarde vestingsteden van Zeeland.
Ligging en omgeving
Poorterslaan 2-6 en Churchillweg 1 is gelegen in de wijk Linie, een van de gevestigde woonwijken van Hulst op vijf minuten van de historische binnenstad.
Het nabijgelegen Stationsplein geeft toegang tot een Jumbo, het Winkelcentrum Stationsplein en winkels als Action en Xenos.
Sportief actieve huurders vinden hun weg naar Sportcentrum Delta en Cheap Fit, beide binnen enkele minuten bereikbaar.
Het historisch stadscentrum van Hulst, met zijn vestingwallen, Grote Markt en brede horeca- en winkelaanbod, ligt op fietsafstand.
Highlights
Gemengd object: 800 m2 winkelruimte én 391 m2 woonoppervlak
Volledig verhuurd met langlopende huurcontracten
Stabiel jaarinkomen van € 109.000
Vijf minuten van het historisch stadscentrum van Hulst
Goed onderhouden pand uit 1980
Drie kadastrale percelen (B 1802, 1803 en 1804)
Rustige woonwijk met alle dagelijkse voorzieningen op loopafstand
Elk voorstel zal worden besproken met onze opdrachtgever en behoeft diens goedkeuring. Alle opgegeven maten en oppervlakten zijn indicatief.
Zodra partijen overeenkomen, dient koper zich te identificeren middels een geldig legitimatiebewijs en inschrijving van de Kamer van Koophandel, en dient aan te tonen over de benodigde financiële middelen te beschikken.
Aanvaarding: In overleg.
Voorbehoud: Eventuele verkooptransacties dienen ter goedkeuring voorgelegd te worden aan opdrachtgever c.q. eigenaar. Tot deze goedkeuring is verleend, zijn alle uitgebrachte aanbiedingen geheel vrijblijvend. Deze aanbieding is vrijblijvend en informatief. Aan deze informatie kunnen geen rechten worden ontleend. Zowel eigenaar als Kindt & Biesbroeck aanvaarden geen aansprakelijkheid indien er onjuistheden in de brochure staan of als deze anders geïnterpreteerd wordt dan bedoeld.
Wilt u een notitie aanmaken bij dit object of wilt u deze volgen, maak dan gratis een (zoek) profiel aan om van deze en meer extra's te profiteren!
Reageer direct Delen op Facebook Download brochureKadaster
Bezichtigen







